SAMPLE HOUSE
SAMPLE HOUSE
* Calculated including shipping costs, of StructaPanel components, to Rep. de Panamá, cement ($10/bag),
aggregates ($11/m³), and reinforcing steel as priced in Panamá
** Based on the use of shotcrete for application of concrete to walls and roof. Hand application will, of course
be more time consuming.
Windows, doors, utilities, appliances, fixtures, and furnishings were not included in the pricing.

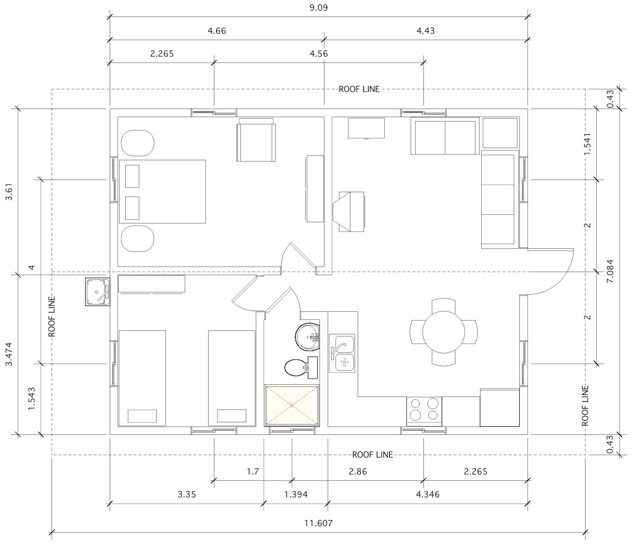
Footprint: 64.4 m²
Interior Area: 53.8 m²
Minimum Wall Height: 2.4 m
Window Area: 8.4 m²
Estimated Labor for Construction**: 360 man-hours
Material Cost (using inflatable cores)*: $5,211.00 USD
Material Cost (using organic cores)*: $4,525.00 USD
Estimated Average Construction Time**: 12-14 days
Monolithic Home for Earthquake and Hurricane Areas
The assembly above is showing wall and roof panels with 200 mm. spacing between the primary trusses. They are shown assuming inflatable cores. If other core material was used the increased weight would mandate narrower more manageable panels. This would need to be determined in the field.
For simplicity and clarity, utility installations were omitted. The mono-pour foundation/slab is shown with a 0.1 m slab reinforced with 150 mm x 150 mm x 3 mm. welded wire mesh and the perimeter foundation of 0.3 m x 0.5 m is reinforced with 4 #4 rebars (continuous) and #3 rebar stirrups at 0.3 m O.C. Dowels in slab are 0.5 m #4 rebars drilled and epoxied into slab in a staggered pattern @ 0.4 m O.C.
The roof panels are shown as 1.2 m x 4 m for greater ease of handling in the overhead situation.
CONSTRUCTION AND ASSEMBLY VIDEO